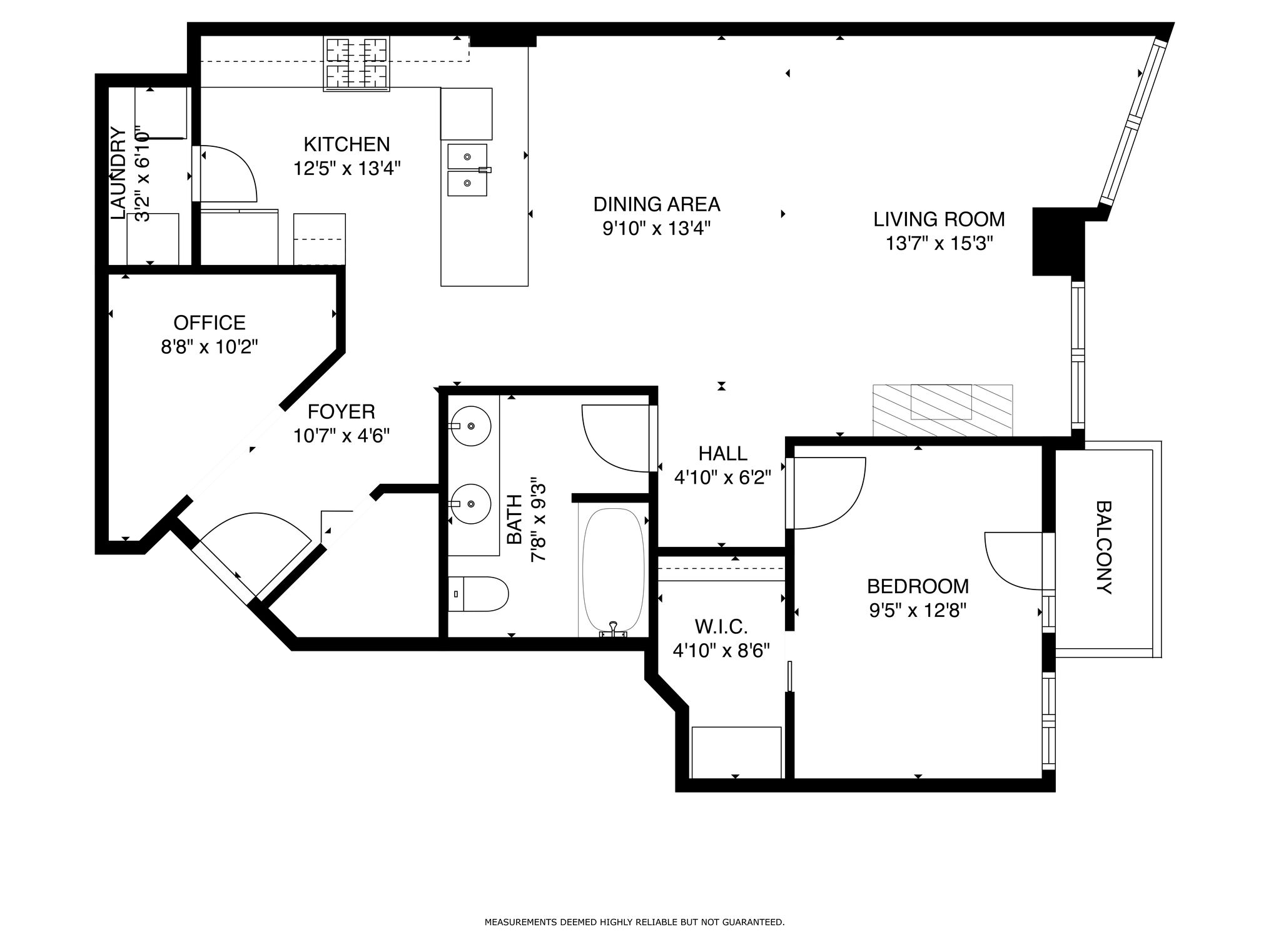
819 Virginia St #3101 Seattle, WA 98101 - Spectacularly perched way up on the 31st floor in Denny Triangle's glamorous Cosmopolitan with sprawling northwesterly views of Lake Union, Queen Anne hill, Olympic Mountains & glowing cityscapes, you'll be living it up in contemporary luxury in this elegantly upgraded 966sf masterpiece! An entertainers dream showcasing rich handscraped hardwoods, stunning walls of windows, grand living room with fireplace & modern kitchen with calacatta quartz counters, full height backsplash & gas stove. Glitzy foyer opens to den/office with built-in desk & shelving. Primary suite with romantic balcony & spacious walk-in closet with organizers. Indulging tiled bath with dual raised vessel sinks. Prime park spot & additional storage space. Highrise amenities: 24hr concierge, fitness center, spa/sauna, clubroom, lounge, rooftop garden, guest suite, business center & more!
Status: SOLD 12/14/2023
Price: $650,000
MLS# 2067500
Community: Denny Triangle
Building: Cosmopolitan
Beds: 1 + Den
Baths: 1
Square Feet: 966
HOA Dues: $1,009
Taxes: $5,899
Style: Flat
Year Built: 2007
Heating: Gas Furnace + Fireplace
Cooling: Central A/C
Parking: Secure Garage











































