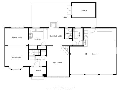
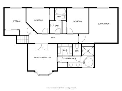
Peacefully tucked away on scenic 1/2 acre oasis in esteemed Storm Lake Estates, this sprawling 2004 2-story boasts stunning curb appeal & private forest views from every window! Lavishly appointed with exotic hardwoods, rich granite, elegant wainscoting & tall windows, the spacious main floor features soaring covered entry, grand foyer with cascading open staircase, formal living & dining with dramatic ceilings, huge family room with corner fireplace & chef's kitchen with tiled breakfast nook. Opulent primary with cathedral ceilings, bay window & newly upgraded 5-piece designer bath. Bonus theatre room/5th bed. Enormous sun-drenched, fully-fenced backyard. 3-car dream garage. Steps to community park & miles of nature trails. Central A/C!
Status: SOLD 8/8/2025
Price: $900,000
MLS# 2402045
Community: Three Lakes
Neighborhood: Storm Lake Heights
Beds: 4+
Baths: 2.5
Square Feet: 2,382
Lot Size: 0.52 Acres
Taxes: $7,930
Style: 2-Story
Architecture: Traditional
Year Built: 2004
Heating: Gas / Forced-Air
Cooling: Central A/C
Dutch Hill Elementary
Grades: K-6 | Distance: 4.8 miles
Centennial Middle School
Grades: 7-8 | Distance: 6.3 miles
Snohomish High School
Grades: 9-12 | Distance: 6.9 miles
















































