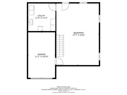
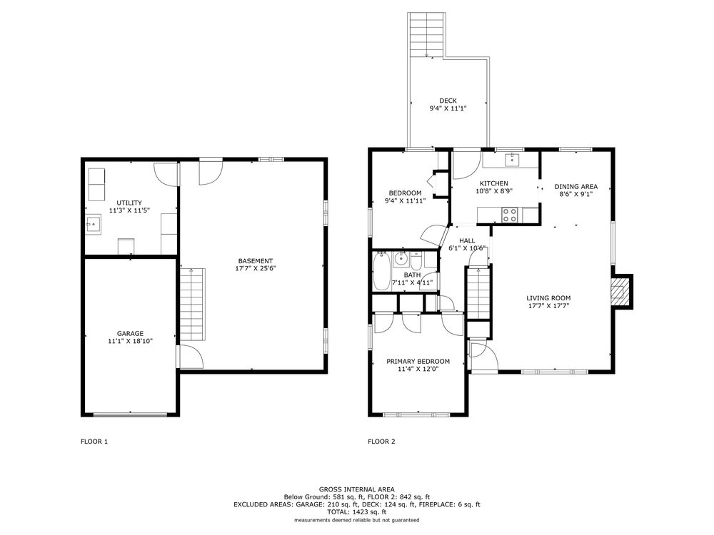
4257 33rd Ave W Seattle, WA 98199 - Privately perched above a quiet residential street on a prime lot with alley access & views of Discovery Park in Magnolia's treasured Lawton Park neighborhood, this 1,423sf 2 bedroom 1-story with daylight basement & attached garage is well-maintained, newly updated & full of original mid-century character! Oak hardwoods & large picture windows with abundant natural light throughout. Spacious living room with timeless brick fireplace open to formal dining room. Huge lower-level with open staircase, wide-plank LVP floors, family room, flex space & private entry. Kitchen with stainless steel appliances opens to sprawling backyard with entertainment deck, glass-faced garden shed & plenty of room for a detached garage or accessory dwelling unit!
Status: SOLD 12/8/2023
Price: $840,000
MLS# 2178160
Community: Magnolia
Neighborhood: Lawton Park
Beds: 2
Baths: 1
Square Feet: 1,423
Lot Size: 4,800 sq ft
Taxes: $7,056
Style: 1-Story with Daylight Basement
Architecture: Cape Cod
Year Built: 1994
Heating: Electric
Parking: Garage + Dual Driveways
Lawton Elementary
Grades: K-5 | Distance: 0.6 miles
Mcclure Middle School
Grades: 6-8 | Distance: 2.5 miles
Ballard High School
Grades: 9-12 | Distance: 1.7 miles




























