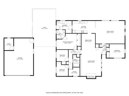
Broadview Opportunity Knocks ~ Spacious, well-maintained & move-in ready, this sprawling 2,150sf 4 bed 2.5 bath rambler with 29x23 detached garage is ideally situated on a PRIME 60x120/7,200sf level lot with side alley access offering tremendous ADU & DADU upside potential! Grand living room with stone fireplace & wall-to-wall built-in bookcases opens to formal dining. Kitchen with breakfast nook opens to massive family room, 1/2 bath & 4th bed wing with apartment conversion possibilities. Primary bedroom with 3/4 bath. Private den/office. A scenic setting surrounded in lush landscapes with low-maintenance grounds, huge entertainment deck & fenced-in RV/boat parking. Steps to Viewlands Elementary + hiking trails & beaches at Carkeek Park!
Status: SOLD 7/14/2025
Price: $860,000
MLS# 2367848
Community: Broadview
Neighborhood: View Lands
Beds: 4
Baths: 2.5
Square Feet: 2,150
Lot Size: 7200sf
Taxes: $7,915
Year Built: 1924
Expansion: 1998
Style: 1-Story
Parking: 29x23 Detached Garage
Heating: Electric Wall Units
Viewlands Elementary!
Grades: K-5 | Distance: 0.3 miles
Whitman Middle School
Grades: 6-8 | Distance: 1.2 miles
Ingraham High School
Grades: 9-12 | Distance: 1.5 miles




































