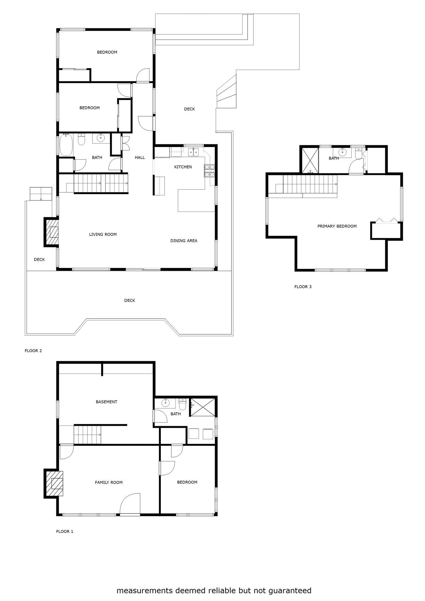
Peacefully perched atop an unobstructed nature preserve, this extraordinary bluff home is the find of lifetime with dazzling 180° Puget Sound views sweeping from Mount Rainier & Three Tree Point to Blake Island, the Olympics & beyond! Enjoy an endless parade of majestic marine life, ships & ferries from the massive wrap-around glass-rail entertainment deck, sprawling patio & private garden with hot tub. Luxuriously upgraded in 2013 with spacious penthouse primary suite, expansive view windows, vaulted ceilings, upscale millwork, custom lighting & A/C throughout. Open concept main floor with hardwoods + daylight basement with family room, 2nd fireplace, 3rd bath & 4th bedroom. Tucked away on a hidden enclave with circular drive & dream garage. Your PNW Paradise awaits!
Status: SOLD | 9/9/2025
Price: $1,781,000
MLS# 2417000
Community: Arbor Heights
Neighborhood: Westwood By The Sound
Beds: 4
Baths: 3
Square Feet: 2,670
Lot Size: 0.25 Acres
Taxes: $14,620
Style: 2-Story with Daylight Basement
Year Built: 1936 / 2013
Heating: Gas / Forced-Air
Cooling: Heat Pump
Garage: 2-Car Detached
Arbor Heights Elementary
Grades: K-5 | Distance: 0.5 miles
Denny Middle School
Grades: 6-8 | Distance: 1.9 miles
Cheif Sealth High School
Grades: 9-12 | Distance: 1.9 miles

















































