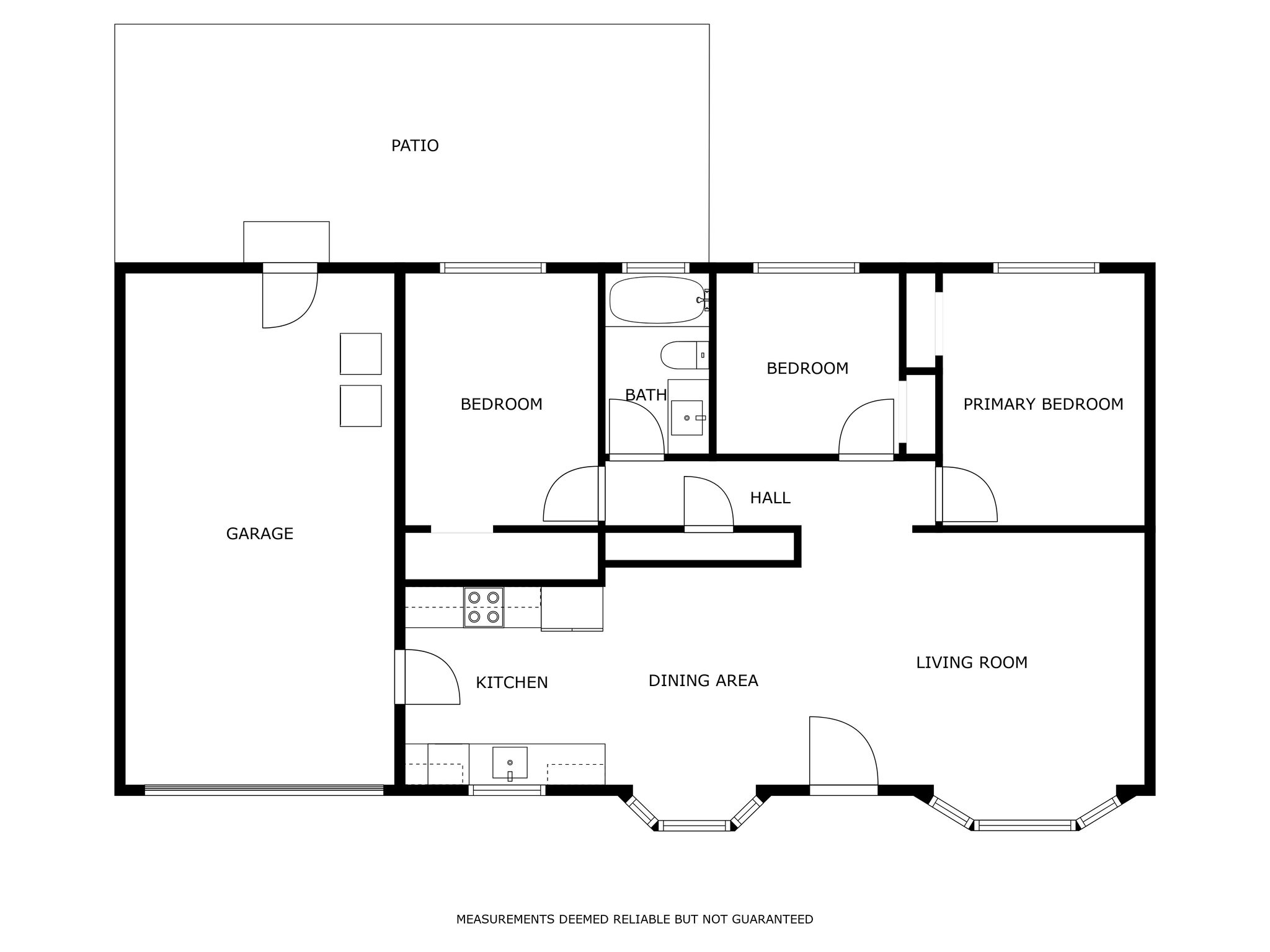
1011 E St SE Auburn, WA 98002 - Meticulously upgraded, conveniently located & affordably priced, you'll love the vibe & feel right at home in this move-in ready mid-century rambler! Gorgeous street appeal with new siding, new roof & pristine grounds. Spacious open floor plan features dual bay windows basked in natural light. Freshly refinished oak hardwoods, new doors, custom lighting & designer paint throughout. Remodeled kitchen with white shaker cabinets, tile backsplash & stainless steel appliances. 3 grand bedrooms with plush carpets & lush garden views. Ultra luxurious modern bath. Efficient central gas heat. Generous garage with storage. Sprawling level backyard. Steps from rebuilt elementary school. Minutes to parks, amenities & major highways. Carefree stair-free easy living!
Status: SOLD on 4/16/2024
Price: $490,000
MLS# 2207000
Community: Downtown
Neighborhood: Terminal Park
Beds: 3
Baths: 1
Square Feet: 940
Lot Size: .145 Acres
Taxes: $4,308
Style: Rambler
Architecture: Mid-Century
Year Built: 1954
Heating: Gas Forced Air
Parking: 1 Car Garage
Terminal Park Elementary
Grades: K-5 | Distance: 0.1 miles
Olympic Middle School
Grades: 6-8 | Distance: 0.6 miles
Auburn High School
Grades: 9-12 | Distance: 0.8 miles



























