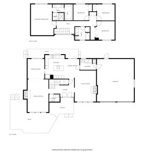
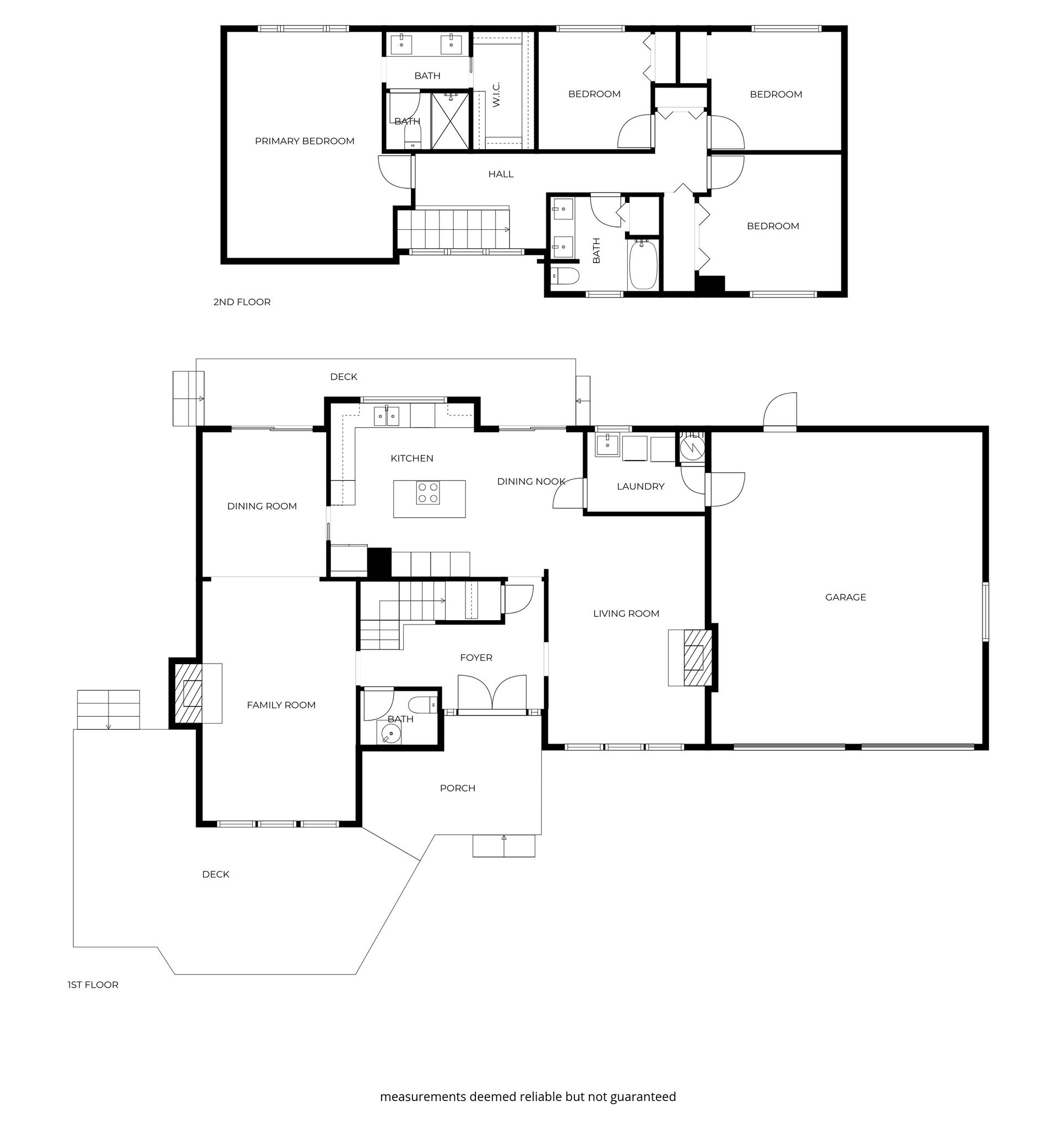
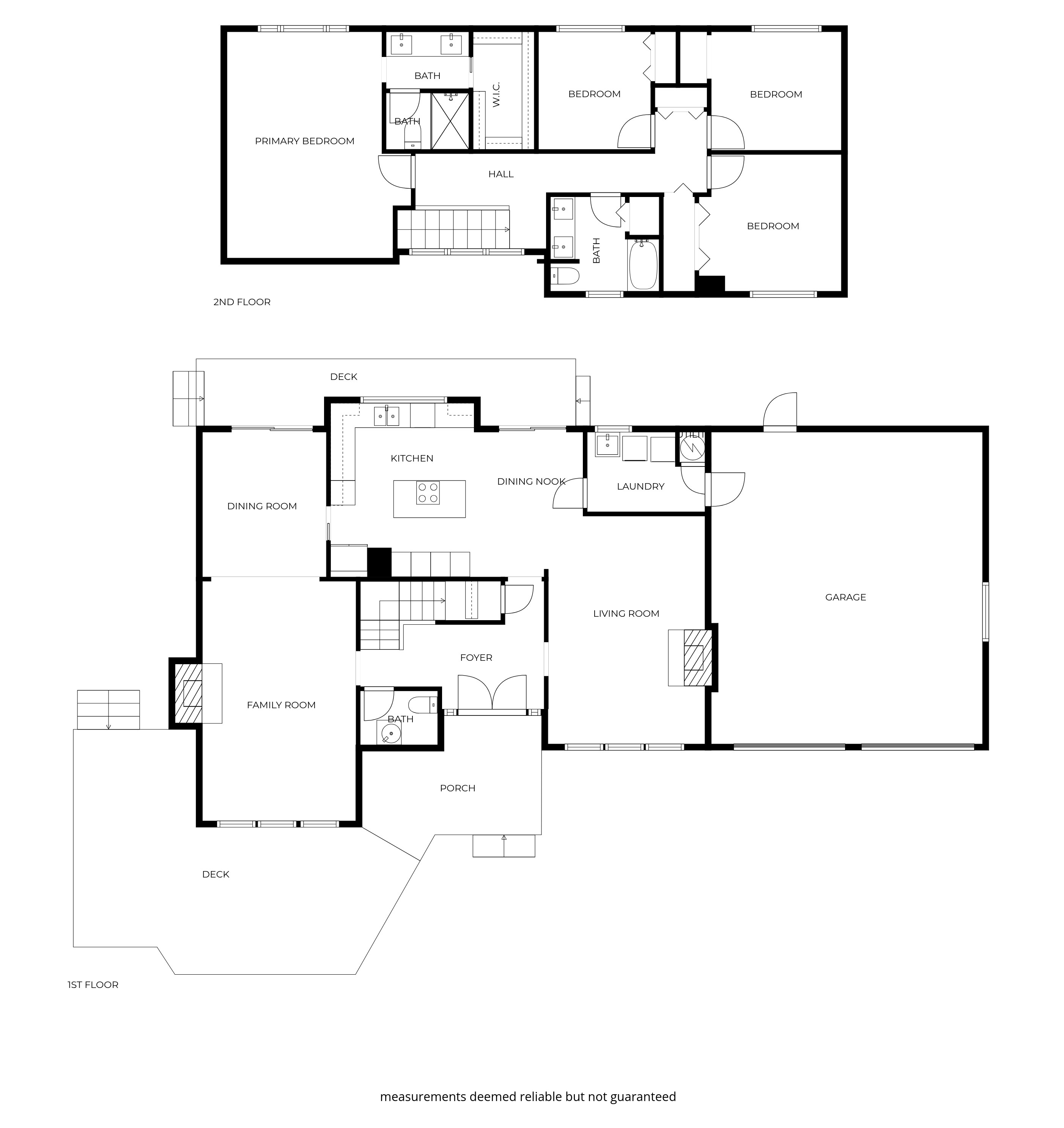
Tucked away on a coveted cul-de-sac in Edmonds esteemed Esperance neighborhood, this contemporary stunner dazzles with dramatic architecture, upscale finishes & captivating curb appeal! Manicured grounds, sprawling wrap-around front porch & covered entry lead to impressive double-door foyer with solid oak hardwoods, soaring ceilings & modern cable-rail staircase with open loft. Brilliantly designed, the 2,420sf, 4 bed, 2.5 bath floor plan features spacious rooms, oversized windows & abundant natural light. Living room with vaulted open-beam ceiling, towering brick fireplace with floating hearth & floor-to-ceiling windows opens to formal dining with glass slider to new deck. Upgraded chef's kitchen with granite counters, cooktop island, double ovens & dining nook with 2nd slider opens to huge family room with fireplace & wall-to-wall windows. Grand primary suite with cathedral ceilings, designer bath with dual-sink marble vanity & pocket-door to walk-in closet. Laundry room with deep stainless steel utility sink. Massive garage with custom cabinetry & new doors with privacy glass accents. Beautifully landscaped backyard with fire pit & storage shed. New high-efficiency furnace, central A/C & more. Short walk to prized schools with rapid access to major highways, medical facilities & downtown Edmonds waterfront!
Status: SOLD 4/6/2026
Price: $1,150,000
MLS# 2491200
Community: Esperance
Neighborhood: Jesse's Ponderosa
Beds: 4
Baths: 2.5
Square Feet: 2,420
Lot Size: 0.20 Acres
Taxes: $6,830
Style: 2-Story
Architecture: Contemporary
Year Built: 1979
Heating/Cooling: Electric / Central A/C
Garage: 2-Car / 572sf
Chase Lake Elementary
Grades: K-5 | Distance: 0.2 miles
College Place Middle School
Grades: 6-8 | Distance: 0.8 miles
Edmonds-Woodway High School
Grades: 9-12 | Distance: 0.4 miles




































