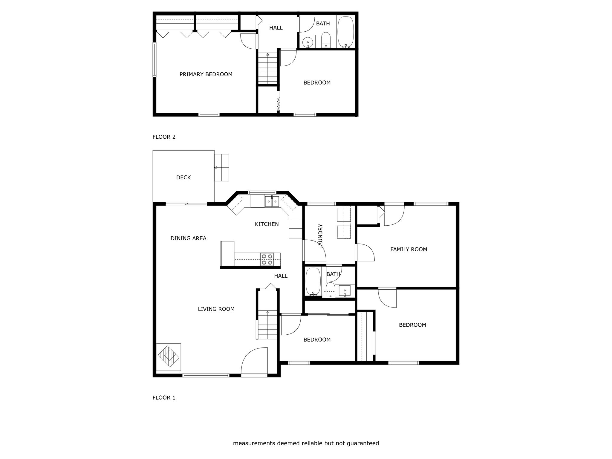
Lakeside Country Living ~ Tucked away on a secluded hillside at the end of a quiet cul-de-sac across from Lake Marcel, this 1670sf, 4 bed, 2 bath, 2-story on .31 acres is a sweat equity opportunity! Fresh paint & new flooring would transform this home. At this bargain price, there's plenty of room to budget for additional upgrades too. Imagine the possibilities. Built in 1986, the house is solid with an ideal layout featuring living room with open staircase, wood stove & big picture window, kitchen with skylights, primary bedroom with vaulted ceilings and family room wing with 4th bedroom, private entry, laundry & 3/4 bath. Beautiful views of forested grounds from every window. Gas in street. Short walk to private community parks & beaches!
Status: SOLD on 4/10/25
Price: $625,000
MLS# 2320699
Community: Stillwater
Neighborhood: Lake Marcel
Beds: 4
Baths: 2
Square Feet: 1,670
Lot Size: 0.31 Acres
Taxes: $6,022
Style: 2-Story
Architecture: Barn-Style
Year Built: 1986
Heating: Electric/Gas Available
Stillwater Elementary
Grades: K-5 | Distance: 0.6 miles
Tolt Middle School
Grades: 6-8 | Distance: 3.9 miles
Cedarcrest High School
Grades: 9-12 | Distance: 2.9 miles
























