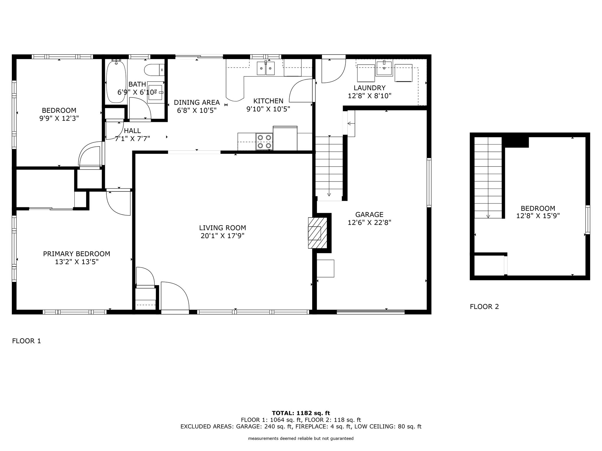
12320 8th Ave NE Seattle, WA 98125 - Meticulously maintained & move-in ready, this 1,030sf 3 bed 1.5 story is ideally situated on a PRIME 7,200sf lot (60x120) with huge backyard & side easement access offering tremendous ADU & DADU upside potential! Boasting timeless mid-century style, the grand living room features wall-to-wall floor-to-ceiling windows, centered fireplace & original hardwoods. Spacious updated kitchen opens to dining room with slider to sprawling patio. Primary suite with walk-in closet. Large utility room with space for 2nd bath opens 3rd bedroom over garage ~ future ADU apartment?? Newer roof & efficient heat pump with central A/C. A commuters dream just steps to the upcoming 130th St light rail station, 1.5 miles to Northgate & minutes to downtown Seattle!
Status: SOLD 5/9/2024
Price: $836,000
MLS# 2227778
Community: Northgate
Neighborhood: Pinehurst
Beds: 3
Baths: 1
Square Feet: 1,030
Lot Size: 7,200sf (60x120)
Taxes: $5,922
Style: 1.5 Story
Architecture: Mid-Century Modern
Year Built: 1951
Heating: Central Heat Pump
Cooling: A/C / Central Heat Pump
Olympic View Elementary
Grades: K-5 | Distance: 1.4 miles
Jane Addams Middle School
Grades: 6-8 | Distance: 1.4 miles
Nathan Hale High School
Grades: 9-12 | Distance: 1.4 miles





























