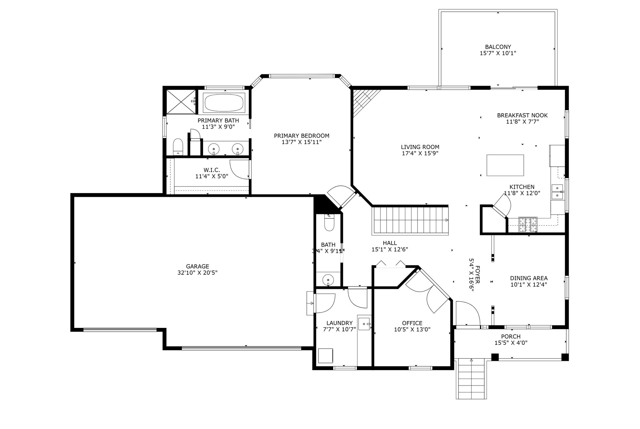
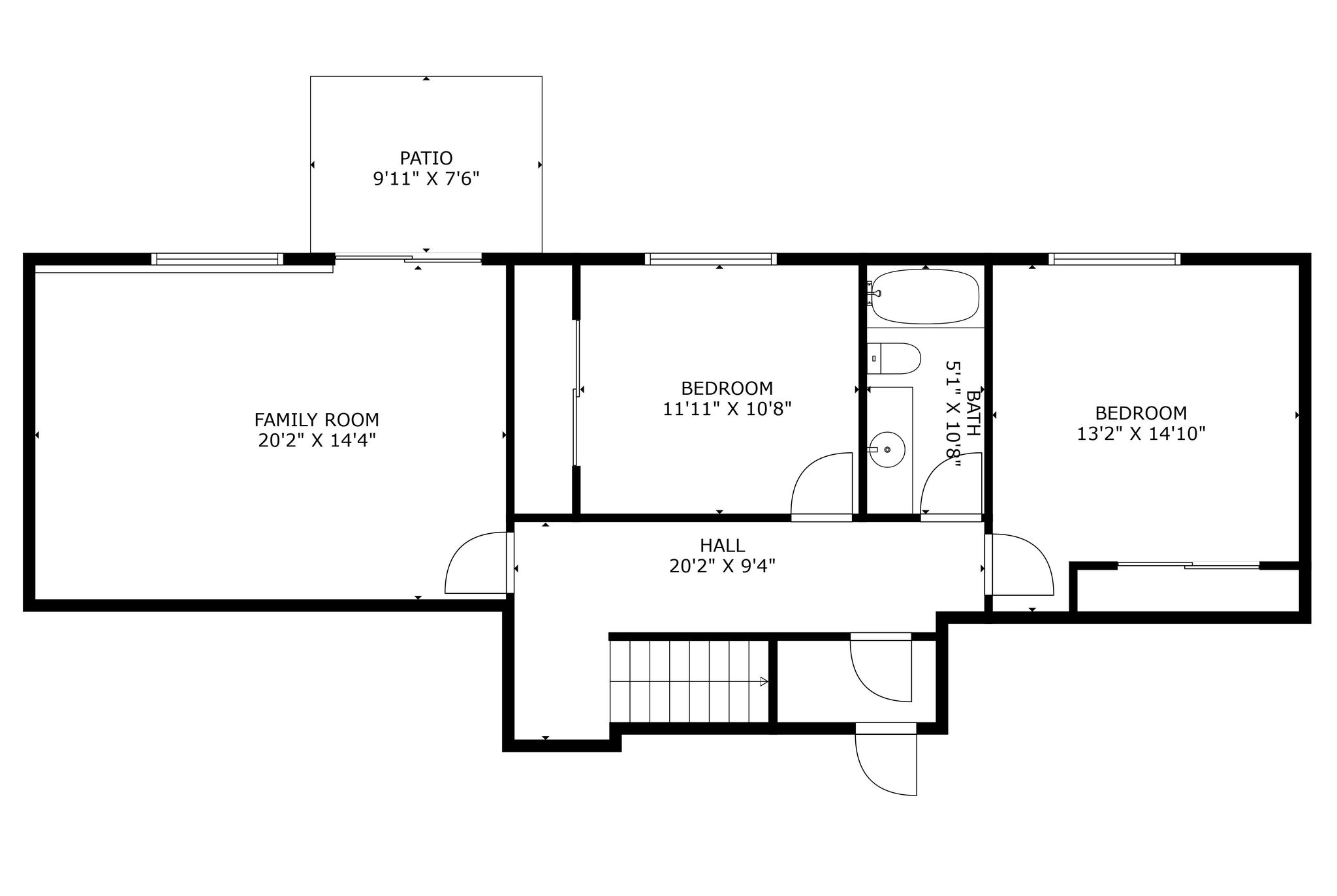
13025 Robinhood Ln Snohomish, WA 98290 - Perched on a prime .6 acre greenbelt view lot backed to a seasonal creek in desirable Robinhood, this immaculate custom-built 2005 Craftsman inspired rambler with daylight basement is an architectural masterpiece! Stunning curb appeal features covered front porch with tapered columns and stone accents . Grand foyer leads to open rail staircase, formal dining room with douglas fir pillars and double door den/office. Spacious living room with vaulted ceilings, oversized arched window and slate gas fireplace opens to breakfast nook and chef’s kitchen with island bar, granite counters, full-height tile backsplash & high-end stainless steel appliances. Primary suite with luxurious 5-piece bath & walk-in closet. Towering entertainment-sized view deck. Lower level features huge family room, 700sf storage space and 9' tall ceilings throughout. 3-car garage, carport and RV/Boat parking!
Status: SOLD on 9/15/2023
Price: $ 800,000
MLS# 2152333
Community: Snohomish/Monroe
Neighborhood: Robinhood
Beds: 3+
Baths: 2.5
Square Feet: 2,446
Lot Size: 0.6 Acres
Taxes: $5,753
Style: Rambler with Daylight Basement
Architecture: Craftsman
Year Built: 2005
Heating: Gas Forced Air
Parking: 3 Car Garage + Carport
Chain Lake Elementary
Grades: K-5 | Distance: 1.2 miles
Park Place Middle School
Grades: 6-8 | Distance: 2 miles
Monroe High School
Grades: 9-12 | Distance: 2.5 miles







































