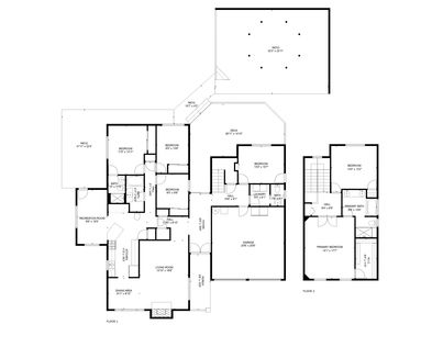
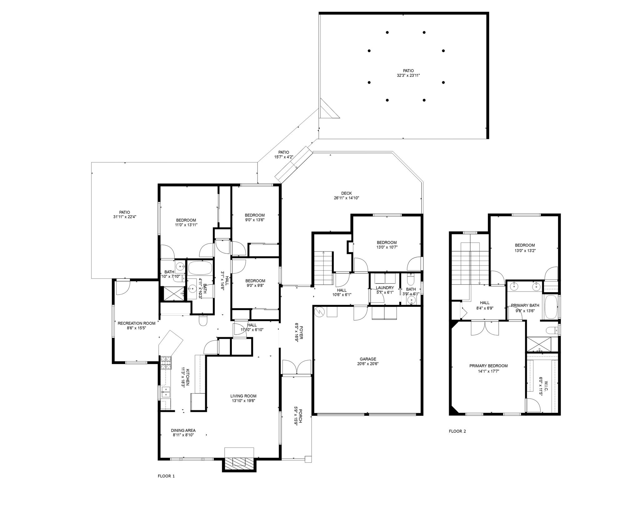
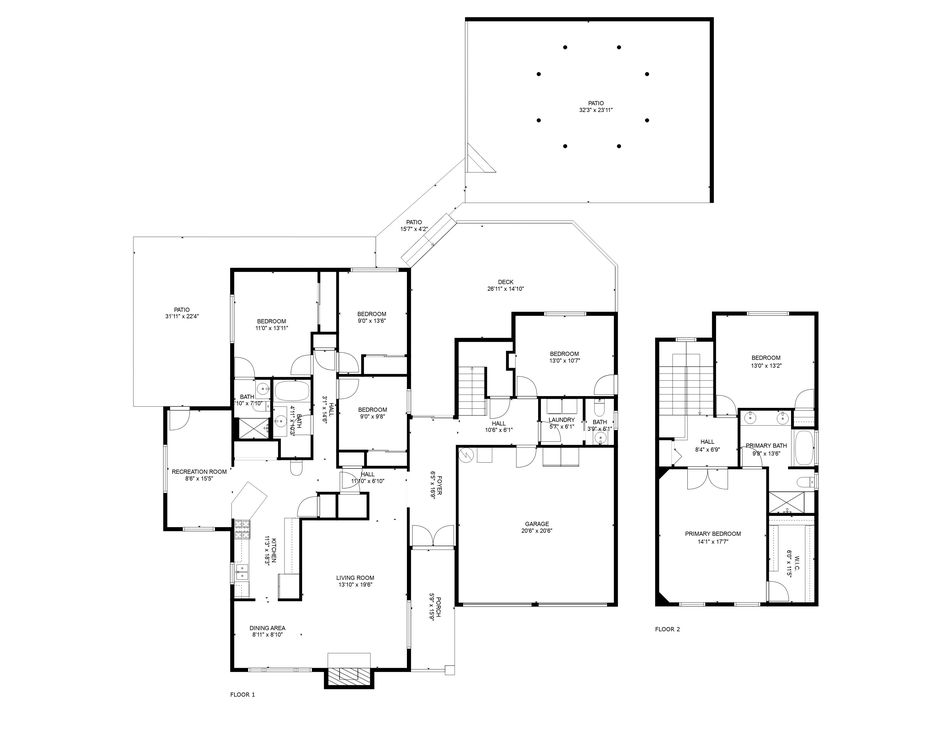
2036 151st Ave SE Bellevue, WA 98007 - Exceptional location just steps from Bellevue's acclaimed Robinswood Park, this spacious 6 Bedroom, 3.5 bath 2-story is where mid-century modern flair meets luxuriously remodeled comfort. Grand double-door foyer leads to impressive living space with vaulted open-beam tongue & groove ceilings, oversized windows, slate gas fireplace & hardwoods throughout. Granite & steel kitchen with custom cabinets, dual pantries & bar opens to rec room/flex space with patio. Upper wing with 2nd primary suite, soaring ceilings, lavish 5-piece bath + massive bedroom ideal for home office. Sun drenched .21 acre lot privately surrounded with lush landscaping features extensive entertainment deck & stamped concrete patio with covered gas fire pit. Prime Belleuve Schools!
Status: SOLD on 9/29/2023
Price: $ 1,520,000
MLS# 2149801
Community: Robinswood Park
Neighborhood: Lakewood Heights
Beds: 6
Baths: 3.5
Square Feet: 2,800
Lot Size: .21 Acres
Taxes: $10,694
Style: 2-Story
Architecture: Modern/Contemporary
Year Built: 1963
Heating: Gas Forced Air
Parking: 2 Car Garage
Spiritridge Elementary
Grades: K-5 | Distance: 0.9 miles
Tillicum Middle School
Grades: 6-8 | Distance: 0.8 miles
Sammamish High School
Grades: 9-12 | Distance: 1.3 miles








































