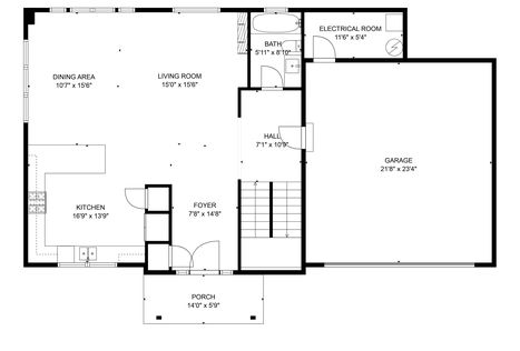
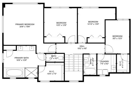
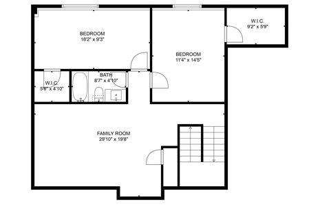
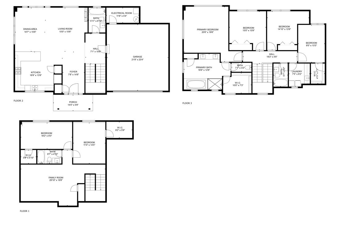
12029 36th Ave NE Seattle, WA 98125 - Backed to your own stunningly gorgeous private greenbelt sanctuary, this lavishly luxurious & conveniently located 3,380sf, 6 bedroom, 4 bath, 2015 2-story with basement looks like new & feels like an enchanting PNW nature retreat! Superbly designed & meticulously crafted with impressive high-end finishes, tall ceilings & abundant natural light throughout. Grand foyer opens to spacious great room with HUGE view windows, rich hardwoods, full-height fireplace, built-in credenza & MASSIVE gourmet kitchen with long breakfast bar. Palatial primary suite with dream bath & elegant walk-in closet with window. Lower level with family room & apartment potential. Tucked away down a long secluded driveway with ample parking on a sprawling .20 acre creekside lot!
Status: SOLD on 11/20/2023
Price: $1,146,000
MLS# 2173170
Community: Meadowbrook
Neighborhood: Cedar Park
Beds: 6
Baths: 4
Square Feet: 3,380
Lot Size: .20 Acres
Taxes: $10,735
Style: 2-Story with Basement
Architecture: NW Contemporary
Year Built: 2015
Heating: Gas Forced Air
Parking: 2 Car Garage
John Rodgers Elementary
Grades: K-5 | Distance: 0.7 miles
Jane Addams Middle School
Grades: 6-8 | Distance: .05 miles
Nathan Hale High School
Grades: 9-12 | Distance: 0.6 miles















































